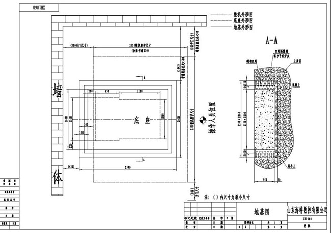
数控加工中心属于高精密机床,加工精度要求在1丝以内,加工中心机床在厂家检测完毕出厂发往客户前,就要求客户做好准备接收工作,熟练地操作者、安全的电源、气压设备、稳定的地基。这里着重介绍一下地基对数控加工中心的影响。

每个型号加工中心地基图不一样,请根据的床子索要地基图。
有些客户认为地基做不做都可以,对设备影响不大,我可以这么给您说这是您对设备*不负责任的说法,良好的地基对设备后期使用中的稳定性、精度至关重要,一个较差和平常的地基,放上同一台设备,在长期的日常工作和重力作用下地面会变型,那么随之我们的设备水平跟着也会变,那么仅此这一个变化就会给我们的加工效率和成品率带来致命的打击,有可能您在这种情况下干出的产品都是废品,这对于加工行业*不能容忍的。
因此,奉劝各位朋友不要抱有侥幸心理,在设备没发货前一定要做好地基,这会给后期的工作带来很多好处。


